G132 | torun.direct - Centrum Wsparcia Biznesu

G132

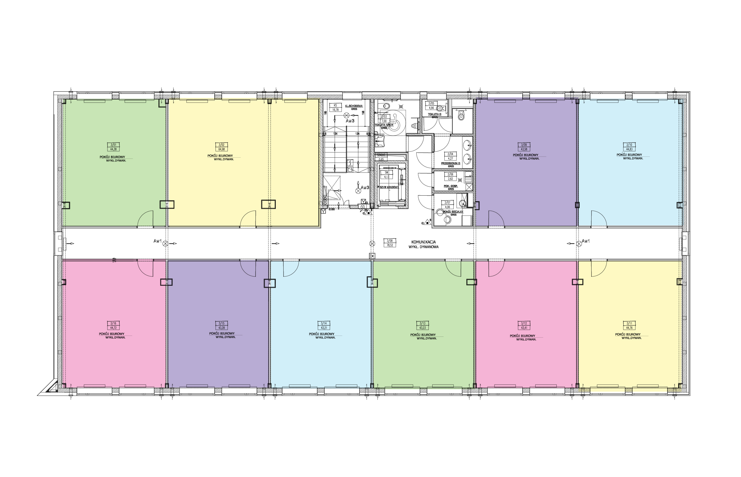
  • 132 Grudziądzka  Street
  • standard - class A
  • available area:
    •  2nd floor - 41 m² 95 m2 (available from 15/05/2019 on)
  • total area of the building - 3000 m²
  • 3 above-ground storeys
  • 1 underground storey
  • 2017 - completion of construction
  • 67 parking spots
  • minimum lease term – no information
  • rent (m²/month) – 45 PLN/m2 net
  • operating costs (m²/month) – according to the consumption
  • rent for parking spots (place/month) – included in price

 

Pobierz plik